Home Floor Plans Features Photos

Floor Plans


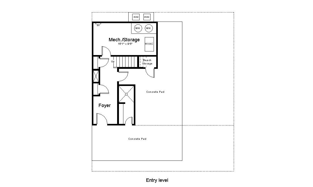
Entry Level Floor Plan

Main Level Floor Plan

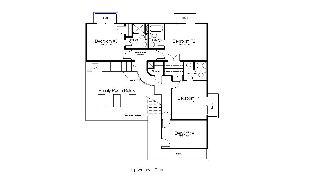
Upper Level Floor Plan